网站地图
铁路水泥防护栅栏
|
混凝土水泥电缆槽
|
铁路混凝土预制件
预制安装施工队 全国各地均可预制 质量有保障
15132852272
网站首页
全部产品
工程案例
视频展示
技术文档
设计图纸
模具设备
联系我们
招聘信息
热卖产品:
混凝土防护栅栏
|
桥梁步行板
|
混凝土盖板
PRODUCTS
产品分类
铁路水泥防护栅栏
预制2.2米高铁水泥防护栅栏
铁路水泥防护栅栏
铁路水泥围栏
2.2米钢筋混凝土防护栅栏
1.8米钢筋混凝土防护栅栏
铁路线路防护栅栏
2.5米铁路线路混凝土防护栅栏
2.2米铁路线路防护栅栏
铁路线路防护栅栏
钢筋混凝土水泥立柱
8001铁路钢筋混凝土水泥立柱
钢筋混凝土水泥刺绳柱
2.5米铁路钢筋混凝土水泥立柱
2.2米铁路钢筋混凝土水泥立柱
钢筋混凝土电缆槽
铁路专用水泥电缆槽
E型铁路混凝土路基电缆槽
厂家预制铁路路基电缆槽
钢筋混凝土水泥电缆槽
钢筋混凝土盖板
混凝土水泥盖板
铁路桥梁步行板
水泥步行板铁路桥专用
钢筋混凝土水泥步行板
预制混凝土挡砟块
钢筋混凝土水泥预制件
来图生产混凝土水泥预制件
市政工程
全部产品
当前位置:
首页
>>
设计图纸
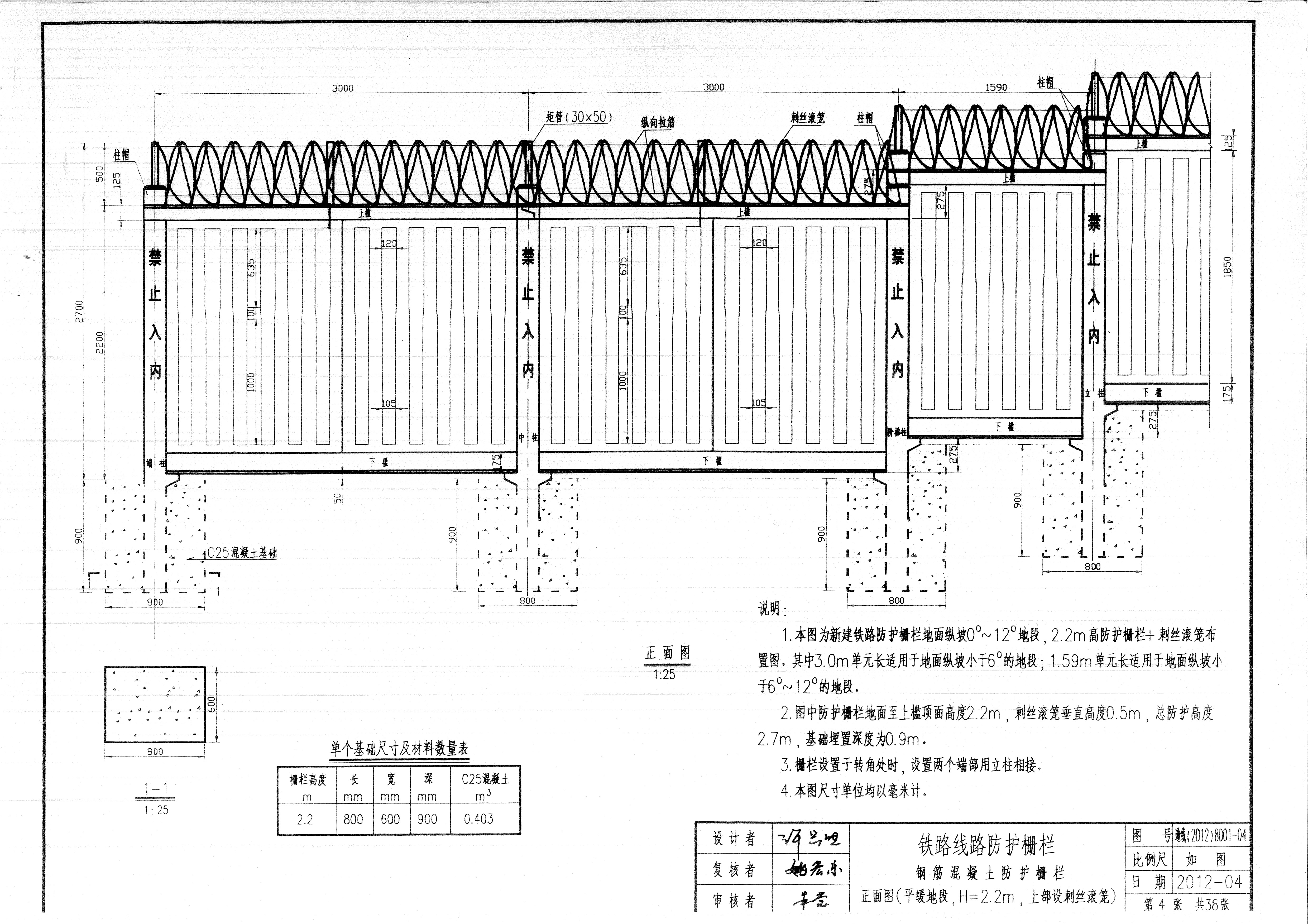
铁路线路防护栅栏通线(2012)80
铁路线路防护栅栏通用图是铁路线路防护栅栏预制的依据。...
高速铁路桥下防护栅栏通线(2012
高速铁路桥下防护栅栏通线(2012)8001-Ⅱ高清图纸。高速铁路桥...
钢筋混凝土刺绳柱设计图纸
钢筋混凝土水泥刺绳柱、配合刺绳起到防护作用。根据钢筋混凝土刺...
高速铁路桥下防护栅栏立柱图纸
2.5米钢筋混凝土水泥立柱图纸,钢筋图纸。厂家直销,全国发货电...
返回顶部
15132852272
添加微信获取实时报价